施工事例
光と工夫の間取り
心地よく暮らす
理想のマイホーム
新築戸建て
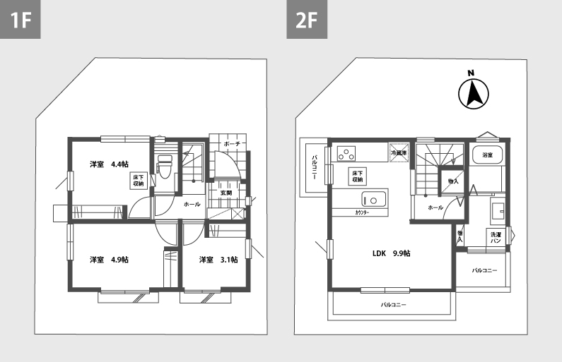
- 土地面積:67.65㎡
- 建物面積:53.65㎡
- 3LDK
おすすめポイント
間取り
明るさと開放感あふれる居室、家事を助ける工夫、そして充実した収納や快適な水まわり。
住まう人の快適さを随所に感じられる、光と機能性に満ちた間取りです。
リビング
リビングは、高い天井と上部の窓から降り注ぐ陽光に包まれた、開放感あふれる憩いのスペースです。
洋室1
1階の洋室は全室に衣類掛けを備え、コンパクトながら機能的で使いやすい設計となっています。
洋室2
2面採光で心地よい光と風を感じられる明るい洋室です。
洗面台
洗面所にはベランダを設け、毎日の洗濯もスムーズに。家事動線がぐっと快適になります。
キッチン
キッチンは広々とした調理スペースと十分な収納を確保。すっきり整えながら快適に料理を楽しめます。
お風呂
浴室は清潔感あふれる窓付きタイプ。換気がしやすく、心地よいバスタイムを叶えます。
お気軽にお問い合わせください
ホームページをご覧いただきまして、誠にありがとうございます。
買取査定依頼(手数料無料)は、お電話または下記の買取査定依頼フォームよりお気軽にお申込ください。
Tel:04-2922-3300受付時間 : 9:00~18:00(火曜・水曜は除く)
担当 : 渡邉(わたなべ) ※秘密厳守いたします。
